Der Trick mit der beweglichen Wand
Kleinwohnungen, die exakt zu den Bedürfnissen urbaner Singles oder Paare passen, sind Mangelware. Ein neues Wohnhaus in Zürich zeigt, wie auf kleinster Fläche zeitgemäss gelebt werden kann.
Veröffentlicht am 4. Oktober 2023 - 06:00 Uhr

Effzient genutzter Wohnraum: Dank drehbarer Wand kann die Zürcher Wohnung individuell an die Bedürfnisse seiner Bewohner angepasst werden.
Die Zahl der Single- und Paarhaushalte nimmt zu. Im Kanton Zürich etwa lebt heute in zwei Dritteln der Wohnungen nur noch eine Person oder ein Paar. Diese Entwicklung ist mitverantwortlich dafür, dass beispielsweise der Wohnflächenverbrauch pro Kopf in der Stadt Zürich zwischen 1980 und 2022 von 36 auf 41 Quadratmeter angestiegen ist. Vor allem Singles und Paare der Altersgruppe zwischen 30 und 60 Jahren wohnen gern im städtischen Umfeld. Deren Lebensentwürfe passen jedoch selten zum starren Korsett angejahrter Kleinwohnungen.
Deshalb mieten die digitalen Kosmopoliten, wie die Zielgruppe bei Wohnraumvermarktern heisst, lieber modernere Wohnungen, die es im passenden Kleinformat jedoch kaum gibt . Also belegen diese Singles und Paare meist mehr Wohnfläche als nötig. «Die individuellen Lebensentwürfe verlangen nach flexibel nutzbaren Kleinwohnungen, die sich rasch den Wünschen der Bewohnerschaft anpassen lassen», sagt Valentin Müller, CEO von Uto Real Estate Management in Zürich. Das Immobilienunternehmen hat im vergangenen Jahr zusammen mit dem Architekturbüro Edelaar Mosayebi Inderbitzin ein auf die Zielgruppe zugeschnittenes Mehrfamilienhaus an der Stampfenbachstrasse in Zürich realisiert.
Passt wie ein Kleidungsstück
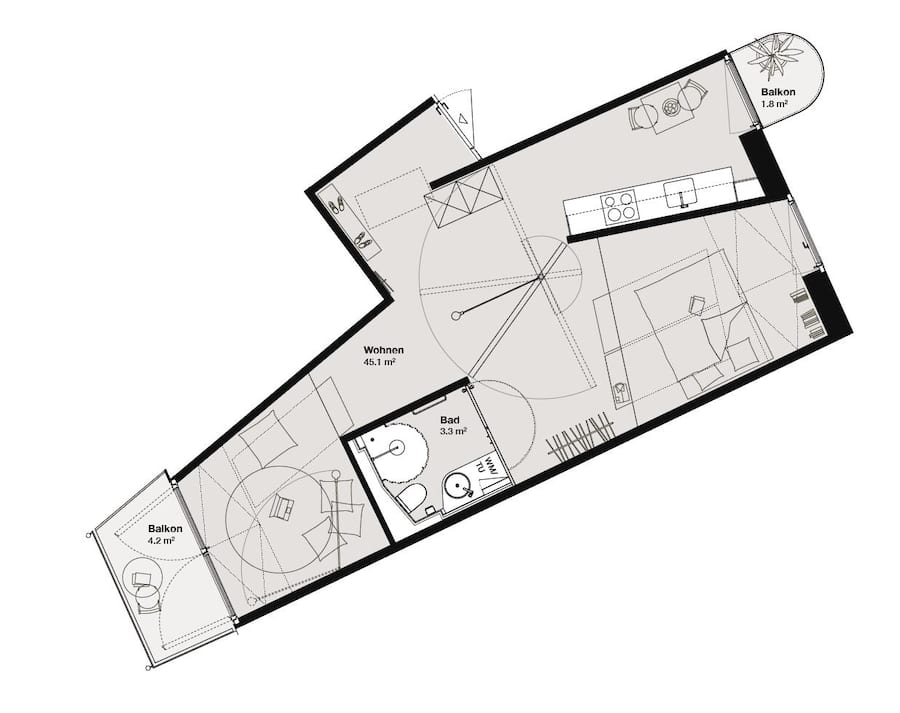
Die Architekten verfolgten dabei die Vision einer Wohnung, die sich den Wünschen der Bewohnerinnen und Bewohner fast wie ein gut geschnittenes Kleidungsstück anschmiegt. Performatives Wohnen nennen sie dieses Konzept. Dessen wichtigstes Element ist eine knapp bemessene Wohnfläche, bei der nur gerade das Bad abgetrennt ist. Der Rest kann frei genutzt werden und lässt sich dank einer drehbaren Wand rasch in unterschiedlichen Konfigurationen aufteilen.

Dazu kommen weitere flexible Elemente wie drehbare Lampen, eine Deckenschiene mit einem verschiebbaren Metallbogen zum Aufhängen von Kleidern sowie grosse, 30 Zentimeter hohe Plattformen unterhalb der Fenster. Diese dienen etwa als Sitzgelegenheit oder Unterbau für eine Matratze, strukturieren den Raum durch den Höhenunterschied und bieten dank integrierter Schubladen viel Stauraum. Getestet wurde das performative Wohnen in einer Prototypenwohnung auf dem Dach der ETH Hönggerberg in Zürich. Interessierte konnten dort wochenweise wohnen, und Sensoren massen jede Bewegung der Einrichtungselemente. Ziel war es, die Räume und die Funktionalität der beweglichen Elemente zu prüfen sowie Erkenntnisse für das geplante Mehrfamilienhaus zu erhalten.
«Fühlt sich viel grösser an»
Nach dem Vorbild des Prototypen wurde schliesslich das Mehrfamilienhaus mit 23 performativen Wohnungen gebaut, die eine Fläche von 26 bis 58 Quadratmetern haben. Der Markt absorbierte das neue Angebot sofort. Zu den Erstbezügern gehören auch Saskia Gottsponer und Sandro Venetz. Die Szenografin hörte in der Ausbildung vom Projekt, und ein Kollege von ihr hatte im Prototyp gewohnt. «Die Idee gefiel mir, und ich habe uns sofort für eine Wohnung angemeldet », sagt Gottsponer. Ihr Freund, der als Projektmanager bei der Credit Suisse arbeitet, zeigte angesichts von nur 51 Quadratmetern Wohnfläche zuerst eine gewisse Skepsis. Mit dem Einzug verflog sie aber: «Die Wohnung ist so geschickt geplant, dass sie sich viel grösser anfühlt», sagt Venetz.
«Dank der drehbaren Wand können wir die Raumaufteilung kurzfristig ändern.»
Saskia Gottsponer
In der Tat: Da Wände fehlen und die Räume rund 30 Zentimeter höher sind als der Standard, wirken sie gross. Angetan ist das Bewohnerpaar auch von der drehbaren Wand, die im Alltag Schlaf- und Wohnbereich trennt: «Dank ihr können wir die Raumaufteilung kurzfristig ändern», sagt Gottsponer. Kommen etwa viele Gäste, vergrössern sie den Wohnraum zulasten des Schlafbereichs, und wenn beide im Homeoffice arbeiten , schafft die quer gestellte Wand einen Sichtschutz für Videokonferenzen.

Glückliche Wohnpioniere an der Stampfenbachstrasse in Zürich: Sandro Venetz und Saskia Gottsponer
Auch sonst ist das drehbare Element praktisch: Es dient zum Beispiel als Anschlagbrett oder als Leinwand für Kinoabende. Die weitere Einrichtung gefällt dem Paar ebenfalls, etwa das kompakt organisierte Bad oder die Podeste mit den Schubladen: «Dort findet irrsinnig viel Platz», so Venetz. Das Paar hat darin etwa einen kleinen Staubsauger, Büromaterial und Hanteln fürs Fitnesstraining untergebracht.
25 Quadratmeter pro Person
Das performative Haus ist auch in seiner Gesamtheit eine beispielhafte Lösung: Die knapp bemessenen Wohnungen reduzieren den Flächenbedarf. So brauchen Saskia Gottsponer und Sandro Venetz nur gerade 25 Quadratmeter pro Person, die Bauweise aus vorgefertigten Holzelementen ist nachhaltig, ebenso die Weiterverwendung der Kellerräume des Geschäftshauses, das vorher an derselben Stelle stand. Das reduzierte die energieintensive Herstellung von neuem Beton.
Worauf sollten Paare bei einer gemeinsamen Wohnung achten? Sollen sie zusammen einen Untermietvertrag vereinbaren? Und wie werden Vereinbarungen über gemeinsame Kosten festgehalten? Als Beobachter-Abonnentin oder -Abonnent erhalten Sie hierzu diverse praktische Mustervorlagen, Checklisten und Merkblätter.
Das Neuste aus unserem Heft und hilfreiche Ratgeber-Artikel für den Alltag – die wichtigsten Beobachter-Inhalte aus Print und Digital.
Jeden Mittwoch und Sonntag in Ihrer Mailbox.


